With around 250 locations and 90 serve centers, we are represented in the most important economic regions of the world. The advantages are clear: short paths to our customers, fast response times and a shared language.
No sealing components mounted on the shaft and hence no additional shaft vibrations
Seal rings running contact-free - sliding faces and machine consume no additional power
Advantages
Easy installation by split housing design (shaft removal not required)
Long-term operation time
Maintainability
Segmented seal rings for easy replacement
Operating range
Shaft diameter: d = 40 ... 340 mm (1.57" … 13.39")
Operating pressure: p = vacuum ... 20 bar (290 PSI) abs.
Operating temperature: t = -120 °C ... +800 °C (-184 °F … +1,472 °F) for carbon, max. 225 °C (437 °F) for PTFE compound
Sliding velocity: vg = max. 150 m/s (492 ft/s) for carbon, max. 40 m/s (131 ft/s) for PTFE compound
Radial play: ±1.0 … 5.0 mm (±0.04" … 0.2")
Axial movement: theoretically unlimited
Recommended wear guard: >300 HB (low pressure), >58 HRC (high pressure)
Materials
Seal ring: Carbon, PTFE compound
Housing: 1.4021, 1.4571, Hastelloy®, Titanium, Inconel®, others
Tension spring / detent: 1.4571, Hastelloy®, Titanium, Inconel®
Standards and approvals
FDA
Compliant to TA Luft (German Clean Air Act)*
"(*) Kohleschwimmringdichtungen werden in der TA Luft
nicht explizit genannt, können aber in bestimmten Anwendungen eine Lösung sein. Der Einsatz ist mit der Genehmigungsbehörde zu klären."
Recommended applications
Chemical industry
Waste incineration and removal industry
Power plant technology
Petrochemical industry
Food processing industry
Metal production and processing
CO2 transportation and storage
Gases
Fumes and exhaust,solids containing, flammable (Atex), acid containing and toxic gases
(Solids containing) steams / liquid mist
Oil mist / penetrating oil
Water
Medium-sized and large fans / blowers
Bearing seals (gear box, motors)
Steam turbines
Mixers, agitators, mills, dryer
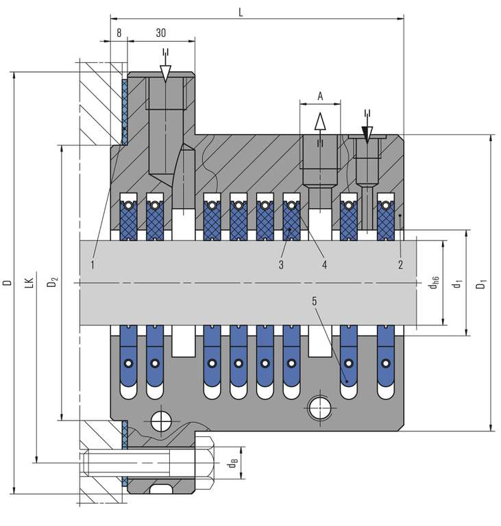
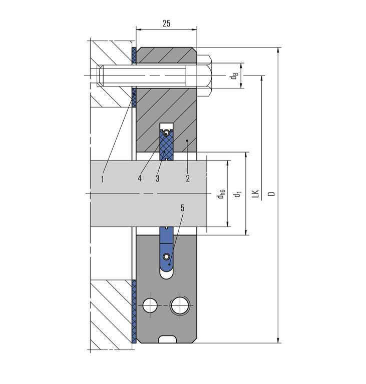
Product variants
EspeyWD200-WD
In short design with 1 to 4 rings for simple low-pressure applications up to 2 bar a
atm. Available from a width of 25 mm. This variant is not suitable for toxic, solid gases and flue gases.
Espey WD200-WDSA
with barrier gas, suction and grease barrier port (for e.g. toxic and solids containing gases with condensate formation as well as Atex applications).
Espey WD200-WDA
for applications involving condensate formation to enable directed throwing off to the outside of the housing.
Espey WD200-WDS
with barrier gas and grease barrier port (for e.g. toxic and solids containing gases as well as Atex applications, on special request).
For toxic and solids containing gases as well as Atex applications type shaft seal Espey WD200-WDKS with short design, reduced housing outside diameter and barrier gas port (for e.g. toxic and solids containing gases as well as Atex applications, on special request).
Espey WD200-WDKF
with short design, reduced housing outside diameter and grease barrier port (for clean media, not for solids containing gases).
Espey WD200-WDK
with short design and grease barrier port - type WDKF in addition with reduced outside housing diameter (for clean media, not for solids containing gases).
Similar products
Espey Magna500+
the large seal for diameters from 500 mm